площадью 58,20 м2, по цене 12804000 по адресу Всеволожский район - Кудрово, Европейский проспект,22

Цена 12 804 000 р.
Адрес Всеволожский район, Кудрово, Европейский проспект,22
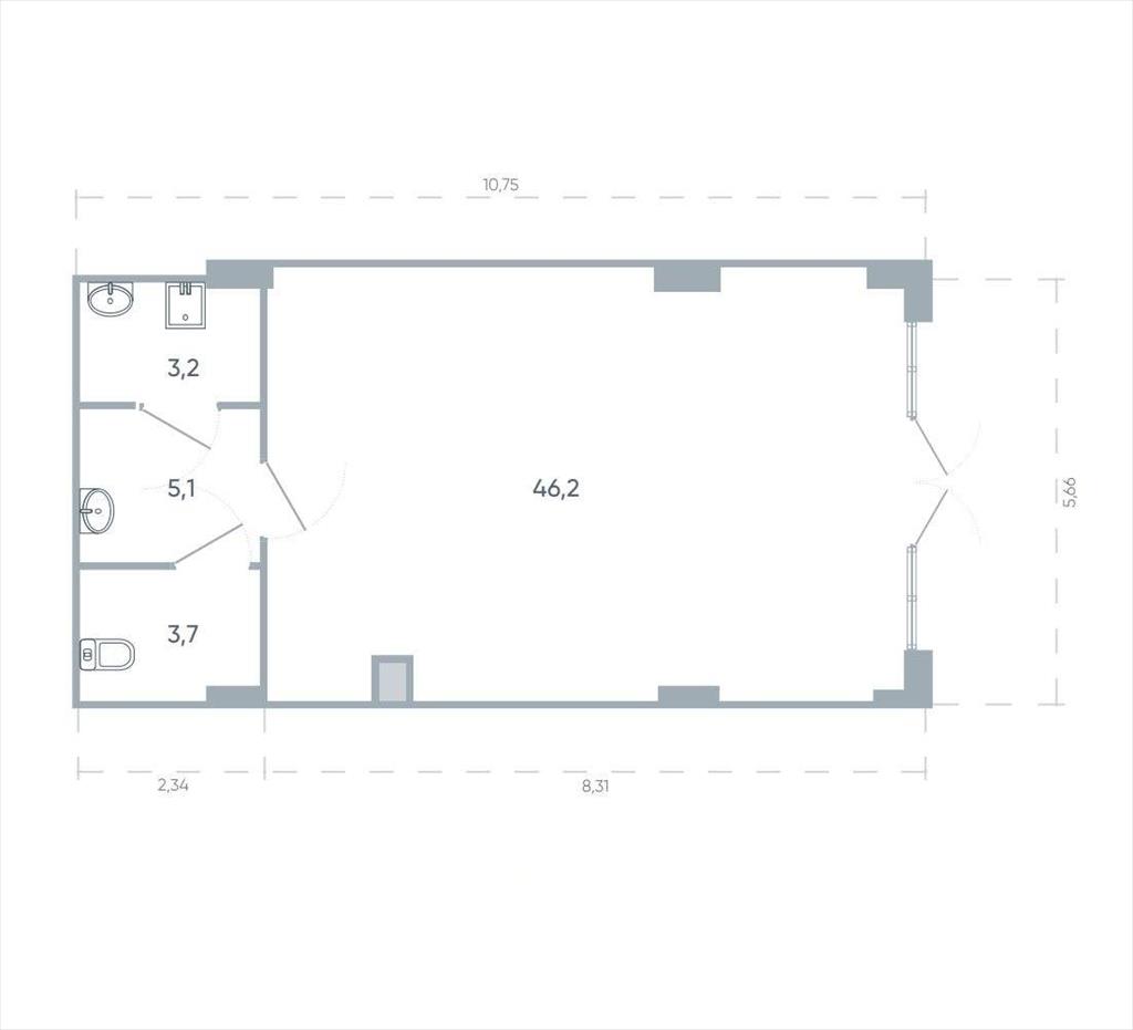
Площадь помещения 58,2 м2
Продается коммерческое помещение свободного назначения на 2 эт в ЖК Европейский парк, в самом сердце г. Кудрово. Помещение с отличной проходимостью, буквальная близость к парку Оккервиль, в комплексе проживает не менее 3000 жителей. Большинство помещений уже выкуплены и сданы в аренду. Площадь помещения - 58,2 м.кв. ; Высота потолка - 3,3 м. ; Электрическая мощность - 7,0 кВт; Количество мокрых точек - 3 шт; Количество входов - 1 шт (со двора) . Назначение помещения универсальное, возможные варианты использования: медицинское учреждение, магазин, ресторан/кафе, салон красоты, офис, банк, фитнес и др. В стоимость помещения включен НДС в размере 5%. Индивидуальные условия приобретения и полный ассортимент коммерческих помещений уточняйте у менеджера отдела продаж.
Объявление № 23242574
Дата подачи:
2 октября 2025 г. 16:10
Дата обновления:
6 октября 2025 г. 17:03
Просмотров 7 Хотите продать быстрее?

Продавец
Отдел продаж
Показать номер телефона
Пожаловаться
Комментарии:
Добавить